
Desinnu studio

Lo studio
Quando gli architetti Marino Coni, Angelo Ledda, Alberto Meloni, Valentina Saccu scelgono “Desinnu Studio” per denominare il proprio studio professionale, radunano in esso le esperienze formative e professionali comuni originatesi nella Facoltà di Architettura di Alghero e quelle individuali svolte all’estero e nella Penisola (Santiago del Cile, Lisbona e Milano).
Con la parola desinnu, che proviene dal sardo disinnare (con il significato di ideare, disegnare, progettare), gli architetti mettono al centro del proprio lavoro il progetto, strumento di conoscenza e trasformazione che implica l’assunzione di uno sguardo proiettivo, astratto e visionario. Analogamente alla lingua inglese che per progetto impiega la parola design, il nome scelto contiene il termine segno (in sardo, sinnu) da intendersi quale traccia, intenzione o, più pragmaticamente, come il mezzo operativo dell’indagine e della costruzione spaziale.
D’altro canto non vi è spazialità che non possa essere de-finita e, quindi, di-segnata.
Nel primo decennio di vita professionale l’attività principale di DESINNUstudio si è concentrata in Sardegna, luogo a partire dal quale ha rivolto il proprio sguardo sui temi dell’architettura, operando su più scale d’intervento. Anche i piccoli interventi, parziali e frammentari, sono stati elaborati nella convinzione che, potenzialmente, vi sia sempre un’occasione per un progetto di architettura.
Per DESINNUstudio l’architettura contemporanea ha il dovere, etico e sociale, di farsi carico del- la riqualificazione e rigenerazione dell’esistente e deve volgere il proprio sguardo non soltanto ai centri e agli edifici storici ma anche alle periferie e a tutti quegli organismi edilizi di più recente edificazione, spesso mediocri, frutto della frenesia edificatoria degli ultimi decenni del ‘900, che hanno in gran parte compromesso le nostre città.
È per questa ragione che ogni preesistenza è sempre interpretata come un frammento che a differenza del rottame, come ha scritto Aldo Rossi, esprime (ancora) una speranza.
È proprio attraverso il progetto che il carattere potenziale, la necessità di completamento, può e deve essere rivelato.
Nei progetti di DESINNUstudio si può cogliere un atteggiamento stratigrafico, sia quando le pree- sistenze ricevono, in addizione, l’innesto di nuovi corpi architettonici, sia quando, in sottrazione, vengono scavate chirurgicamente per generare nuove relazioni con il contesto esistente e per costruire un nuovo progetto dello spazio e della luce.
Alla visione stereotomica della concezione spaziale, oltre che del linguaggio architettonico adot- tato, caratterizzato per lo più da volumi monolitici e rigorosi ma pur sempre porosi e cavi, si affianca inoltre un’intenzione narrativa. Non è poi raro che l’aspetto esteriore dell’edificio risulti sordo e apparentemente impenetrabile, ma in realtà al suo interno rivela una sequenza spaziale articolata, relazionale, che può essere colta solo nella percorrenza e nell’attraversamento.
Progetti
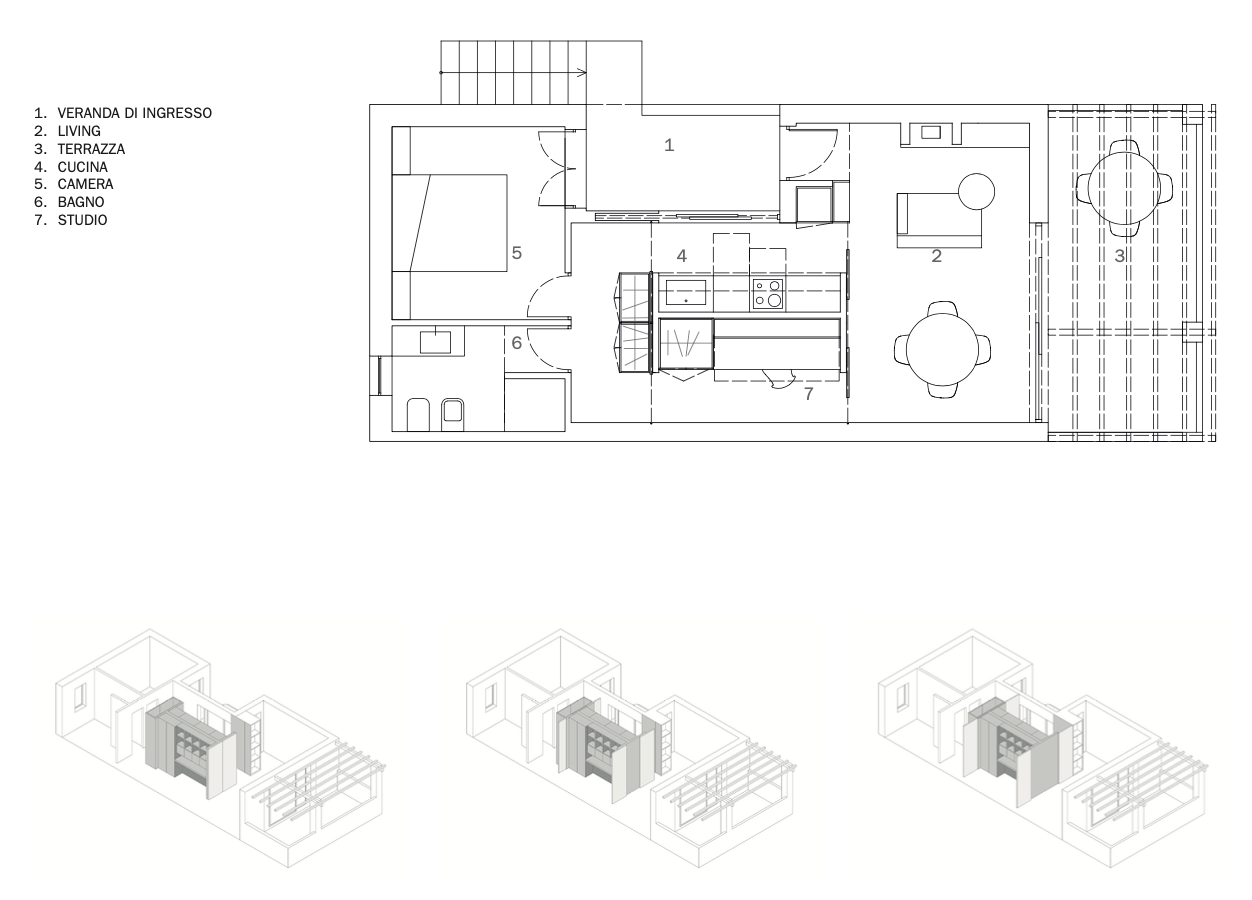
Casa RS, Cala Gonne (NU)
Il progetto riguarda la ristrutturazione di un piccolo appartamento utilizzato prevalentemente nei periodi estivi. La richiesta della committenza di avere la cucina e un posto letto aggiuntivo,sepa- rati e indipendenti dal soggiorno e dalla camera da letto principale, è stata risolta mediante un dispositivo d’arredo posto in posizione centrale e corredato da un sistema di pareti scorrevoli;


{“scale”:1, “origin”:[0.5,0.5]}
{“scale”:3, “origin”:[0.25,0.80]} Schemi di utilizzo
{“scale”:3, “origin”:[0.50,0.80]}
{“scale”:3, “origin”:[0.75,0.80]}
{“scale”:1, “origin”:[0.5,0.5]}


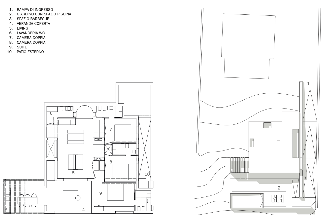
Casa Vacanze Merzellinu, Orosei (NU)
Il progetto riguarda la trasformazione in residenza di un edificio semi-ipogeo, inizialmente destinato a cantina. Con lo scopo di captare la luce all’interno dell’edificio, sono state sottratte tre piccole corti interne disposte in modo cruciforme.
L’arredo ligneo, parte integrante dell’architettura, concorre alla definizione e organizzazione spaziale.



Ampliamento Cimitero, Belvì (NU)
Il progetto di ampliamento del Cimitero di Sedilo (OR) si caratterizza per la presenza di una doppia corte quadrata e lo sviluppo su due livelli: quello inferiore è porticato e ospita i loculi, mentre quello superiore con l’ossario cinerario, affacciandosi sulla vallata del Lago Omodeo, è uno spazio contemplativo del paesaggio;

Il progetto di ampliamento del Cimitero di Belvì interessa la parte retrostante della Cappella cimiteriale e si configura come estensione dell’impianto storico. Si tratta di un intervento chirurgico che attraverso la costruzione di una corte e del muro di cinta che la definisce, crea una relazione diretta con il bosco che sovrasta il recinto cimiteriale e crea le basi per un futuro ampliamento di maggior respiro.







